你有没有想过,一台看似普通的抽料机,拆解开来竟然是个复杂的“艺术品”?今天,就让我带你一起揭开抽料机拆解图纸的神秘面纱,让你对这台机器有更深入的了解。
一、初识抽料机拆解图纸

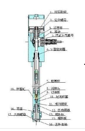
首先,你得知道,抽料机拆解图纸可不是随便画出来的。它是一份详细记录了抽料机各个部件尺寸、形状、位置和装配关系的专业图纸。想要读懂它,你得先了解几个基本概念。
1. 视图:图纸上的视图有正视图、侧视图、俯视图等,分别展示了机器的不同角度。就像你从不同角度看一个人,能看到的细节也不同。
2. 尺寸:图纸上的尺寸标注了各个部件的长度、宽度、高度等,这是组装和维修的重要依据。
3. 符号:图纸上的符号代表了不同的材料、工艺和装配要求。比如,一个“M”符号可能代表螺纹,一个“”符号可能代表孔。
二、如何看懂抽料机拆解图纸

1. 从整体到局部:先从整体视图开始,了解抽料机的整体结构。逐步查看各个局部视图,了解各个部件的形状和位置。
2. 关注关键部件:抽料机的主要部件包括电机、减速器、料斗、输送带等。重点关注这些部件的尺寸、形状和装配关系。
3. 理解装配顺序:图纸上的装配顺序很重要,它决定了组装的先后顺序。比如,有些部件需要先安装,有些则需要后安装。
4. 查阅相关资料:如果遇到不懂的符号或材料,可以查阅相关资料,比如国家标准、材料手册等。
三、拆解图纸中的细节

1. 连接件:连接件是抽料机中常见的部件,如螺栓、螺母、销等。图纸会标注它们的规格和数量。
2. 密封件:密封件用于防止油液泄漏,如O型圈、密封圈等。图纸会标注它们的规格和安装位置。
3. 润滑系统:润滑系统是保证抽料机正常运行的必要条件。图纸会标注油泵、油箱、滤清器等部件的位置和连接方式。
四、拆解图纸的应用
1. 维修:当抽料机出现故障时,可以通过拆解图纸找到故障原因,并进行维修。
2. 改造:如果需要对抽料机进行改造,拆解图纸可以帮助你了解机器的结构,从而进行合理的改造。
3. 制造:如果你需要制造抽料机的某个部件,拆解图纸可以提供详细的尺寸和形状信息。
抽料机拆解图纸是了解和操作这台机器的重要工具。通过学习如何看懂图纸,你可以更好地维护和利用这台设备,提高工作效率。所以,下次当你看到一份拆解图纸时,不妨试着去解读它,你会发现其中蕴含着丰富的知识。
转载请注明出处:admin,如有疑问,请联系()。
本文地址:http://www116.hnsjd.com/post/1287.html
